动载称重模块
日期: 2013 年 8 月 14 日 / 作者: admin / 分类: 称重模块系列、精联产品

动载称重模块
动载称重模块:可以用于辊道、流水线、带搅拌的反应釜等的称重。
针对有冲击力场合,在静载称重模块基础上作了专门设计。,在全浮动模块基础上,在三个方向作了水平限位,确保在水平冲击时的秤体在一定的范围内活动,确保传感器受力传递的准确性,从而确保称量准确性。

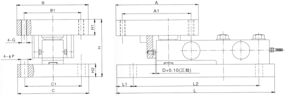
技术参数
量程:0.5,1,2,3,5,7.5,10t
准确度等级:c3
材质:碳钢镀镍或不锈钢
防爆可选

组合方式
在一个称重系统中,标准组合为:
三件套:三套动载模块,圆形料斗,径向或切向安装????????? 四件套:四套动载模块,一般矩形安装

